| Наименование параметра | Показатель |
| Номинальный диаметр DN, мм | 40-800 |
| Номинальное давление PN, МПа | 1,6/1,0 |
| Тип штока | Невыдвижной |
| Класс герметичности | «А» по EN 12266-1 |
| Тип присоединения | Фланцевое EN 1092-2 |
| Тип конструкции проточной части корпуса | Полнопроходное сечение |
| Строительная длина | EN 558-1 серия 14. F4 по DIN 3202 |
| Антикоррозионное покрытие | Эпоксидное покрытие RAL 5002. Толщина покрытия 300 µ |
| Температура рабочей среды, °С |
-10 … +70 Допустима кратковременная 110 |
| Рабочая среда | Вода, сточные воды, неагрессивные жидкости |
| Тип управления | Штурвал, редуктор, электропривод |
| Условия эксплуатации | УХЛ5 по ГОСТ15150-69 |
| Средний ресурс до замены, циклов | 5000 |
| Срок службы, лет | 50 |
|
Гарантийный срок эксплуатации при соблюдении требований к транспортировке, установке и эксплуатации, лет |
10 |
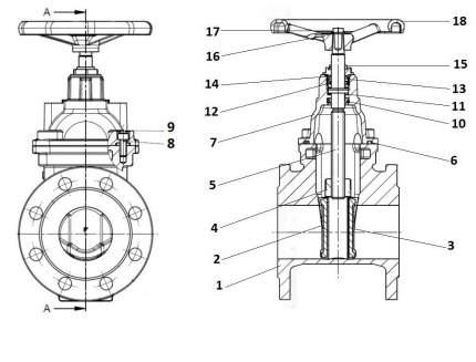
| № | Исполнение | 57-Y |
| 1 | Корпус |
Ковкий чугун EN-GJS-500-7 5.3200 (ex.JS 1050) |
| 2,3 | Клин |
Ковкий чугун EN-GJS-500-7 вулканизирован EPDM 5.3200 (ex.JS 1050) |
| 4 | Гайка штока | CuZn36Pb2As |
| 5 | Шток | Нержавеющая сталь X20Cr13 |
| 6 |
Уплотнение крышки |
EPDM |
| 7 | Крышка |
Ковкий чугун EN-GJS-500-7 5.3200 (ex.JS 1050) |
| 8 | Болт |
С15 сталь углеродистая; оцинк. покрытие; 8.8 |
| 9 | Заглушка | Полимер |
| 10 | Уплотнение | EPDM |
| 11 | Подшипник | Нейлон |
| 12 | О-ринг | EPDM |
| 13 |
Втулка с резьбой |
CuZn36Pb2As |
| 14 | О-ринг | EPDM |
| 15 |
Защитное кольцо |
NBR/EPDM |
| 16 |
Прокладка под штурвал |
С15, С15R, C15E |
| 17 | Гайка | С15, С15R, C15E |
| 18 | Штурвал |
Ковкий чугун EN-GJS-500-7 5.3200 (ex.JS 1050) |
| № | Исполнение | 36-Y |
| 1 | Корпус |
Ковкий чугун EN-GJS-500-7 5.3200 (ex.JS 1050) |
| 2,3 | Клин |
Ковкий чугун EN-GJS-500-7 вулканизирован EPDM |
| 4 | Гайка штока | Латунь CuZn36Pb2As |
| 5 | Шток | Нержавеющая сталь X20Cr13 |
| 6 | Уплотнение крышки | EPDM |
| 7 | Болт |
С15 сталь углеродистая; оцинк. покрытие; 8.8 |
| 8 | Крышка |
Ковкий чугун EN-GJS-500-7 5.3200 (ex.JS 1050) |
| 9 |
Уплотнительное кольцо |
EPDM |
| 10 | Опорное кольцо | РА |
| 11 | Уплотнение | EPDM |
| 12 | Уплотнение | EPDM |
| 13 | Верхнее кольцо |
Ковкий чугун EN-GJS-500-7 5.3200 (ex.JS 1050) |
| 14 |
Защитное уплотнение |
EPDM |
| 15 |
Транспортировочные отверстия |
С15, С15R, C15E |
| 16 | Болт | С15, С15R, C15E |
| 17 | Штурвал |
Ковкий чугун EN-GJS-500-7 5.3200 (ex.JS 1050) |
| 18 | Гайка | С15, С15R, C15E |
| 19 | Прокладка | С15, С15R, C15E |
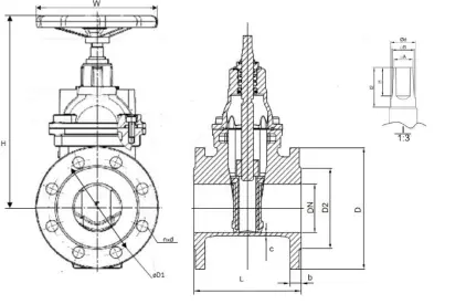
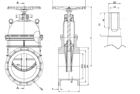
| DN | H | L | D | D1 | D2 | b | n | d | W | C | □A | □B | ød | I1 | I2 |
Масса, кг |
Kvs м3/ч |
| 40 | 235 | 140 | 150 | 110 | 84 | 19 | 4 | 19 | 160 | 5 | 12,8 | 13,8 | 17 | 20 | 28 | 9,0 | 55,27 |
| 50 | 240 | 150 | 165 | 125 | 99 | 19 | 4 | 19 | 160 | 5 | 12,8 | 13,8 | 17 | 20 | 28 | 10,5 | 89,93 |
| 65 | 250 | 170 | 185 | 145 | 118 | 19 | 4 | 19 | 160 | 5 | 12,8 | 13,8 | 17 | 20 | 28 | 11,5 | 150,52 |
| 80 | 312 | 180 | 200 | 160 | 132 | 19 | 8 | 19 | 200 | 5 | 14,5 | 15,6 | 18 | 22 | 27 | 17,0 | 221,11 |
| 100 | 335 | 190 | 220 | 180 | 156 | 19 | 8 | 19 | 250 | 6 | 17 | 19,5 | 24 | 25 | 32 | 24,5 | 357,12 |
| 125 | 385 | 200 | 250 | 210 | 184 | 19 | 8 | 19 | 250 | 6 | 17,2 | 19,7 | 24 | 25 | 32 | 32,0 | 566,18 |
| 150 | 438 | 210 | 285 | 240 | 211 | 19 | 8 | 23 | 320 | 7 | 18,7 | 21,7 | 24 | 30 | 40 | 40,0 | 850,15 |
| 200 | 543 | 230 | 340 | 295 | 266 | 20 | 12 | 23 | 320 | 7,5 | 20 | 22 | 26 | 30 | 40 | 58,4 | 1532,27 |
| 250 | 645 | 250 | 405 | 355 | 319 | 22 | 12 | 28 | 320 | 9 | 20 | 22 | 26 | 30 | 40 | 95,0 | 2420,29 |
| 300 | 728 | 270 | 460 | 410 | 370 | 24,5 | 12 | 28 | 360 | 10 | 20 | 22 | 28 | 30 | 40 | 132,0 | 3507,95 |
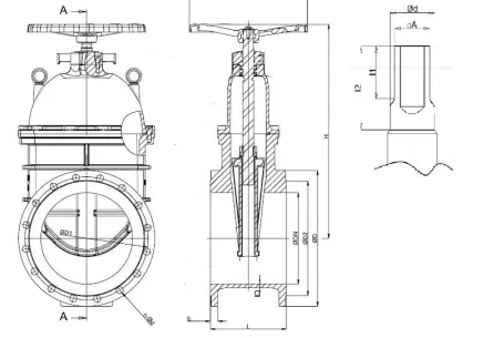
| DN | H | L | D | D1 | D2 | b | n | d | W | C | □A | □B | ød | I1 | I2 |
Масса, кг |
Kvs м3/ч |
| 200 | 543 | 230 | 340 | 295 | 266 | 20 | 8 | 23 | 320 | 7,5 | 20 | 22 | 26 | 30 | 40 | 58,0 | 1532,27 |
| 250 | 645 | 250 | 350 | 350 | 319 | 22 | 12 | 23 | 320 | 9 | 20 | 22 | 26 | 30 | 40 | 85,0 | 2420,29 |
| 300 | 728 | 270 | 445 | 400 | 370 | 24,5 | 12 | 23 | 360 | 10 | 20 | 22 | 28 | 30 | 40 | 131,0 | 3507,95 |
| DN | H | L | D | D1 | D2 | b | n | d | W | C | □A | ød | I1 | I2 | Масса, кг | Kvs м3/ч |
| 350 | 812 | 290 | 520 | 470 | 429 | 26,5 | 16 | 28 | 600 | 14 | 30 | 38 | 45 | 66 | 182,6 | 4628,81 |
| 400 | 923 | 310 | 580 | 525 | 480 | 28 | 16 | 31 | 600 | 16 | 30 | 38 | 45 | 60 | 262,4 | 5944,97 |
| 450 | 974 | 330 | 640 | 585 | 548 | 30 | 20 | 31 | 600 | 17 | 35 | 42 | 45 | 130 | 320,0 | 7831,30 |
| 500 | 1073 | 350 | 715 | 650 | 609 | 31,5 | 20 | 34 | 730 | 18 | 35 | 45 | 45 | 60 | 400,0 | 9602,48 |
| 600 | 1254 | 390 | 840 | 770 | 720 | 36 | 20 | 37 | 730 | 18 | 35 | 45 | 45 | 60 | 630,0 | 14132,95 |
| DN | H | L | D | D1 | D2 | b | n | d | W | C | □A | ød | I1 | I2 | Масса, кг | Kvs м3/ч |
| 350 | 812 | 290 | 505 | 460 | 429 | 24,5 | 16 | 23 | 600 | 14 | 30 | 38 | 45 | 66 | 182,6 | 4628,81 |
| 400 | 923 | 310 | 565 | 515 | 480 | 24,5 | 16 | 28 | 600 | 16 | 30 | 38 | 45 | 60 | 262,4 | 5944,97 |
| 450 | 974 | 330 | 615 | 565 | 548 | 25,5 | 20 | 28 | 600 | 17 | 35 | 42 | 45 | 130 | 320,0 | 7831,30 |
| 500 | 1073 | 350 | 670 | 620 | 609 | 26,5 | 20 | 28 | 730 | 18 | 35 | 45 | 45 | 60 | 400,0 | 9802,48 |
| 600 | 1254 | 390 | 780 | 725 | 720 | 30,0 | 20 | 31 | 730 | 18 | 35 | 45 | 45 | 60 | 630,0 | 14132,95 |
| Деталь | DN | 40 | 50 | 65 | 80 | 100 | 125 | 150 | 200 | 250 | 300 |
| 1 |
Опорная плита. Отверстия согласно ISO 5210 |
F10 | F10 | F10 | F10 | F10 | F10 | F10 | F10 | F14 | F14 |
| 2 | Муфта согласно ISO 5210 / B1 мм | 42 | 42 | 42 | 42 | 42 | 42 | 42 | 42 | 60 | 60 |
| 3 | Шпонка | 12х8х32 | 12х8х32 | 12х8х32 | 12х8х32 | 12х8х32 | 12х8х32 | 12х8х32 | 12х8х32 | 18х11х50 | 18х11х50 |
| 4 |
Болт шестигранный EN ISO 4762 |
2szt. M12x16 8.8 |
2szt. M12x16 8.8 |
2szt. M12x16 8.8 |
2szt. M12x16 8.8 |
2szt. M12x16 8.8 |
4szt. M10x16 8.8 |
4szt. M10x16 8.8 |
4szt. M10x16 8.8 |
4szt. M16x18 8.8 |
4szt. M16x18 8.8 |
| 5 |
Болт EN ISO 4017 |
M8x35 | M8x35 | M8x35 | M8x35 | M10x35 | M10x35 | M10x35 | M10x35 | M12x50 | M12x50 |
| 6 |
Прокладка ISO 7094 |
M8 | M8 | M8 | M8 | M8 | M10 | M10 | M10 | M12 | M12 |
| DN | 40 | 50 | 65 | 80 | 100 | 125 | 150 | 200 | 250 | 300 |
| Момент закрытия, Nm | 12 | 25 | 30 | 50 | 55 | 60 | 80 | 110 | 150 | 200 |
| Количество оборотов для полного открытия | 13 | 19 | 19 | 26 | 25 | 32 | 33 | 44 | 55 | 53 |
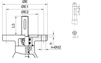
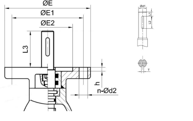
| DN |
Верхний фланец |
Ø Е | Ø Е1 | Ø Е2 | h | n-Ø d2 | Ø d1 | L3 | L1 | T | L2 |
| 350 | F14 | 175 | 140 | 100 | 4,5 | 4-Ø18 | 34 | 60 | 5 | 12 | 50 |
| 400 | F14 | 175 | 140 | 100 | 4,5 | 4-Ø18 | 34 | 60 | 5 | 12 | 50 |
| 450 | F14 | 175 | 140 | 100 | 4,5 | 4-Ø18 | 40 | 80 | 5 | 12 | 63 |
| 500 | F16 | 210 | 165 | 130 | 5,5 | 4-Ø22 | 40 | 80 | 5 | 12 | 63 |
| 600 | F16 | 210 | 165 | 130 | 5,5 | 4-Ø22 | 40 | 80 | 5 | 12 | 63 |
| 700 | F16 | 210 | 165 | 130 | 5,5 | 4-Ø22 | 40 | 80 | 5 | 12 | 63 |
| 800 | F25 | 300 | 254 | 200 | 5,5 | 4-Ø18 | 50 | 100 | 10 | 14 | 70 |
| DN | 350 | 400 | 450 | 500 | 600 | 700 | 800 |
| Момент закрытия, Nm | 370 | 430 | 470 | 500 | 600 | 800 | 1200 |
| Количество оборотов для полного закрытия | 30 | 35 | 40 | 45 | 50 | 50 | 57 |
| DN | PN |
AUMA тип |
Предел момента, Nm |
Фланец согласно EN ISO 5210 |
L | H | Масса, кг |
| 40-50 | 16 | SA 07.2 | 10-30 | F10 | 514 | 288 | 19 |
| 65-100 | SA 07.6 | 20-60 | F10 | 514 | 288 | 21 | |
| 125-200 | SA 10.2 | 40-120 | F10 | 536 | 290 | 23.5 | |
| 250-300 | SA 14.2 | 100-250 | F14 | 725 | 316 | 48 | |
| 350-450 | SA 14.6 | 260-500 | F14 | 728 | 316 | 53 | |
| 500-700 | SA 16.2 | 450-1000 | F16 | 795 | 430 | 83 | |
| 800 | SA 25.1 | 1100-2000 | F25 | 922 | 581 | 152 |
Клиновые задвижки Zetkama 111D созданы для регулировки движения таких носителей, как вода, воздух, других инертных сред.
Благодаря обрезиненному клину обеспечивается герметичность и большой рабочий ресурс задвижки. Это модели с прямым проходом, который исключает скопление осадков.
Монтаж задвижек осуществляется посредством соединений фланцевого типа. Возможна установка в вертикальной или горизонтальной позиции.
Для производства корпуса и крышки применен ковкий чугун, для прокладки и покрытия клина используется EPDM — этилен-пропиленовый каучук.
Рабочая температура — -10…+70 °С (кратковременно — до +110 °С).
Рабочее давление — 1,6 МПа.






