Дисковые поворотные затворы VFY могут применяться для отсечения или дросселирования потока рабочей среды в различных инженерных системах и технологических установках. Открытие или закрытие затвора осуществляется с помощью поворота диска вокруг оси, расположенной перпендикулярно направлению движения потока.
Дисковые затворы VFY могут управляться с помощью:
Для управления затворами типа VFY-WA применяются электроприводы AMB-Y.
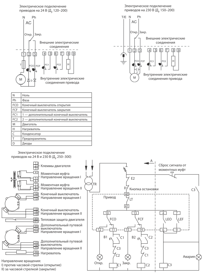
Электроприводы для затворов VFY-WA (DN 25-350 мм) являются однофазными, двухпозиционными (открыто/закрыто). Применяются для поворота запорного диска на 90°. Предназначены для работы от сети переменного тока с напряжением 24 или 230 В.
При отключении электричества у электроприводов AMB-Y предусмотрена возможность ручного закрытия или открытия затвора. Поставляются в комплекте с затворами VFY-WA.
Приводы электрические типов AMB-Y (для затворов с DN 25 – 350 мм), поставляемые в комплекте с затворами дисковыми поворотными типа VFY-WA, двухпозиционные (открыт/закрыт), для однофазного подключения, работают от сети напряжением 24 или 230 В переменного тока, предназначены для поворота диска на 90°. В случае отключения электричества имеется возможность открытия или закрытия затвора вручную.
Номенклатура и технические характеристики электроприводов типов AMB-Y
|
DN, мм |
Максимальный момент поворота, Н·м |
Масса, кг | Напряжение, В | Быстродействие, сек/90° | Мощность, Вт | ||||||||
| 25 | 20 | 1 |
I. 100-240 В перем ток 50 Гц / 100-350 В пост. ток II. 15-30 В перем. ток 50 Гц / 12-48 В пост. ток. |
12 | 15 | ||||||||
| 32 | |||||||||||||
| 40 | |||||||||||||
| 50 | |||||||||||||
| 65 | |||||||||||||
| 80 | 35 | 1,4 |
I. 100-240 В перем ток 50 Гц / 100-350 В пост. ток II. 15-30 В перем. ток 50 Гц / 12-48 В пост. ток. |
7 7 |
15 | ||||||||
| 100 | 60 | 1,4 |
I. 100-240 В перем ток 50 Гц / 100-350 В пост. ток II. 15-30 В перем. ток 50 Гц / 12-48 В пост. ток. |
12 | 45 | ||||||||
| 125 | 60 | 1,4 |
I. 100-240 В перем ток 50 Гц / 100-350 В пост. ток II. 15-30 В перем. ток 50 Гц / 12-48 В пост. ток. |
12 | 45 | ||||||||
| 150 | 60 | 1,4 |
I. 100-240 В перем ток 50 Гц / 100-350 В пост. ток II. 15-30 В перем. ток 50 Гц / 12-48 В пост. ток. |
12 | 45 | ||||||||
| 200 | 300 | 5,6 |
I. 100-240 В перем ток 50 Гц / 100-350 В пост. ток II. 15-30 В перем. ток 50 Гц / 12-48 В пост. ток. |
60 | 45 | ||||||||
| 250 | 300 | 5,6 |
I. 100-240 В перем ток 50 Гц / 100-350 В пост. ток II. 15-30 В перем. ток 50 Гц / 12-48 В пост. ток. |
60 | 45 | ||||||||
| 300 | 600 | 20 | 230 В перем. ток | 38 | 250 | ||||||||
| 350 | 600 | 20 | 230 В перем. ток | 38 | 250 | ||||||||
Эти электрические приводы предназначаются для эксплуатации с такой запорной арматурой, как поворотные дисковые затворы Danfoss VFY-WA. Также поворотные дисковые затворы могут регулироваться рукоятью либо ручным редуктором.
Электроприводы Danfoss типов Valpes (для затворов DN 25-200 мм) и Bernard (DN 250-300 мм) — двухпозиционные (откр./закр.), подключение — однофазное. Они рассчитаны на работу в сети 24 или 230 В, эти устройства обеспечивают поворот диска на 90°. В ситуации с отключением электричества затвором можно управлять в ручном режиме.
Электроприводы Valpes выполнены с пластиковым корпусом, модели Bernard имеют корпус из алюминия.
Этот сайт использует cookies для улучшения работы. Подробнее в {https://www.buildeng.ru/agreement/politika-obrabotki-personalnykh-dannykh.php}.




