|
Материал material |
Давление nominal pressure |
Диаметр nominal diameter |
Макс.температура max temperature |
|
F сталь cast steel |
E 40 бар |
DN 15-200* | 400°C |
|
Материал корпуса/ body material |
F | ||
| Исполнение / type | 01,71 31 | ||
| 1 | Корпус/ body | GP240GH+N 1.0619 | |
| 1,2 | Кольцо клапана/ seat ring | G18 8Mn 1.4370 | |
| 2 | Крышка/ bonnet | GP240GH+N 1.0619 | |
| 3 | Клапан/ disc | X20Cr13 1.4021 | |
| 4 | Шток/ stem | X20Cr13 1.4021 | |
| 5 | Штурвал/ hand-wheel | EN-GJS-400-18-LT JS 1025 | |
| 6 | Уплотнение/ gland packing | Графит/ all- graphite | |
| 7 | Болт/ stud bolt |
42CrMo5 1.7233 |
|
| 8 | Гайка/ nut | C35 1.1181 | |
| 9 | Прокладка/ gasket | Графит+ NiCr/ graphite+ NiCr | |
| 10 | Сальник/ gland |
11SMnPb30 1.0718 |
|
| 11 | Кольцо/ ring | X20Cr13 1.4021 | --------------------- |
| 12 | Прокладка/ washer | X6CrNiTi18-10 1.4541 | --------------------- |
| 13 | Гайка/ screw | X20Cr13 1.4021 | --------------------- |
| 14 | Прокладка/ washer | Оцинкованная сталь/ carbon steel + zinc galvanised | |
| 15 | Гайка/ nut | Оцинкованная сталь/ carbon steel + zinc galvanised | |
| 16 | Пружина/ spring | --------------------- X17CrNi16-2 | |
| 1,4057 | |||
| Макс. Температура/ max. temperature | 400°C | ||
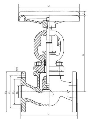
| DN | PN 40 | ||||||||||
| D | d | K | n x d | h | H | L | Dk | K v s | |||
| mm | m3/h | kg | |||||||||
| 15 | 95 | 45 | 65 | 4×14 | 6 | 208 | 130 | 120 | 4,3 | 4,3 | |
| 20 | 105 | 58 | 75 | 4×14 | 6 | 208 | 150 | 120 | 7,0 | 5,1 | |
| 25 | 115 | 68 | 85 | 4×14 | 6 | 208 | 160 | 120 | 11,0 | 5,8 | |
| 32 | 140 | 78 | 100 | 4×18 | 10 | 248 | 180 | 180 | 17,5 | 9,5 | |
| 40 | 150 | 88 | 110 | 4×18 | 10 | 248 | 200 | 180 | 27,0 | 9,8 | |
| 50 | 165 | 102 | 125 | 4×18 | 16,5 | 332 | 230 | 250 | 47,0 | 17,5 | |
| 65 | 185 | 122 | 145 | 8×18 | 16,5 | 332 | 290 | 250 | 68,0 | 20,5 | |
| 80 | 200 | 138 | 160 | 8×18 | 25 | 407 | 310 | 250 | 116,0 | 34 | |
| 100 | 235 | 162 | 190 | 8×22 | 25 | 407 | 350 | 250 | 162,0 | 44 | |
| 125 | 270 | 188 | 220 | 8×26 | 40 | 571 | 400 | 320 | 250,0 | 77 | |
| 150 | 300 | 218 | 250 | 8×26 | 40 | 571 | 480 | 320 | 364,0 | 113 | |
| 200 | 375 | 285 | 320 | 12×30 | 92 | 571 | 600 | 400 | 550,0 | 180 | |
Запорные вентили Zetkama 215F обеспечивают остановку потоков носителей. За счет ходовой резьбы обеспечивается сохранение любого положения вентиля при любых потоках. Арматура предназначается для использования в системах разных областей промышленности. Это химическая, нефтеперерабатывающая, целлюлозно-бумажная сфера.
Это запорные вентили с высокой герметичностью и малой строительной длиной. Арматура экологически безопасна.
Вентили управляются посредством штурвала. Для фиксации на трубопроводе используются фланцевые соединения.
Модель со стальным корпусом, запорным устройством из антикоррозионной стали и металлическими уплотнениями.
Рабочая температура — -10…+400 °C.
Максимальное давление — 40 бар.


